Skip to main content

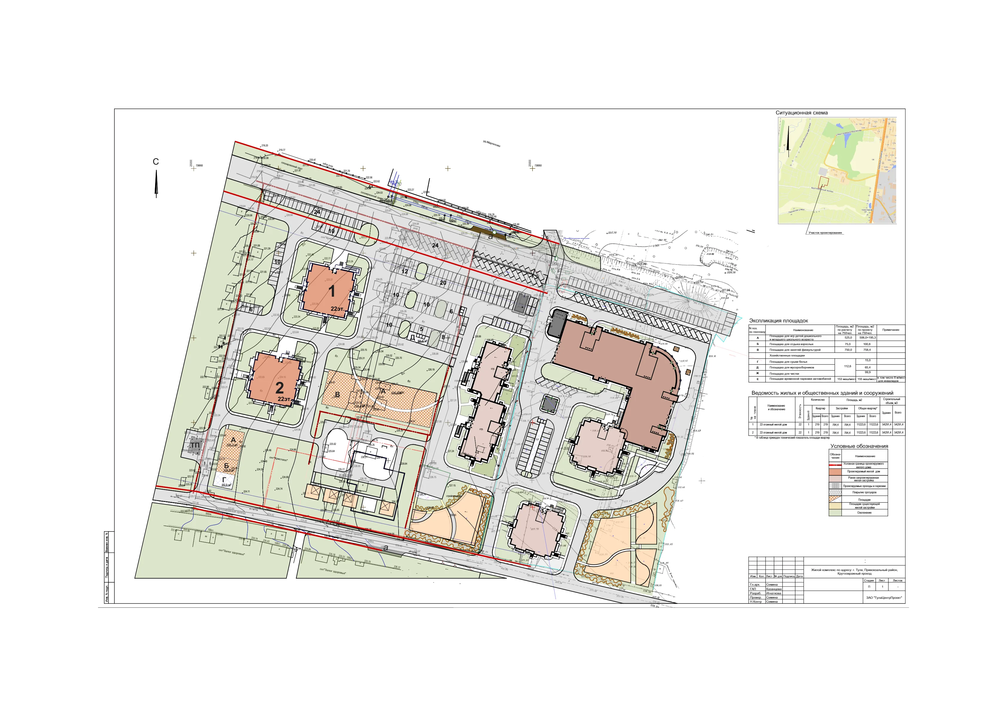
ЖК «Два многоквартирных жилых дома по ул Генерала Маргелова»

г. Тула, район Привокзальный, проезд Крутоовражный,6, д. 1
ЖК «Два многоквартирных жилых дома по ул Генерала Маргелова»
Застройщик ВЕЛАРТ
Проектная декларация №71-000077 от 30.04.2019
Ввод в эксплуатацию 2018
Класс Комфорт

Все проектные декларации ЖК «Два многоквартирных жилых дома по ул Генерала Маргелова»

№71-000077 от 30.04.2019
Этажность24
Статус помещенийКвартиры
Тип домаМонолит-кирпич
Потолки
Отделка
ПарковкаНет данных

0 комментариев
Новые
Старые Популярные
Межтекстовые Отзывы
Посмотреть все комментарии
Всё о стройке

Независимая площадка девелопмента
России и стран СНГ