Skip to main content

Все фильтры

О квартире
Комнаты
Площадь, м²
Общая
от
до
Жилая
от
до
Цена, ₽
от
до
Этаж
от
до
Отделка
О жилом комплексе
Год сдачи
Материал дома
Класс жилья
Ипотечные программы
Скидки и акции от застройщиков
⏳ Скоро будут

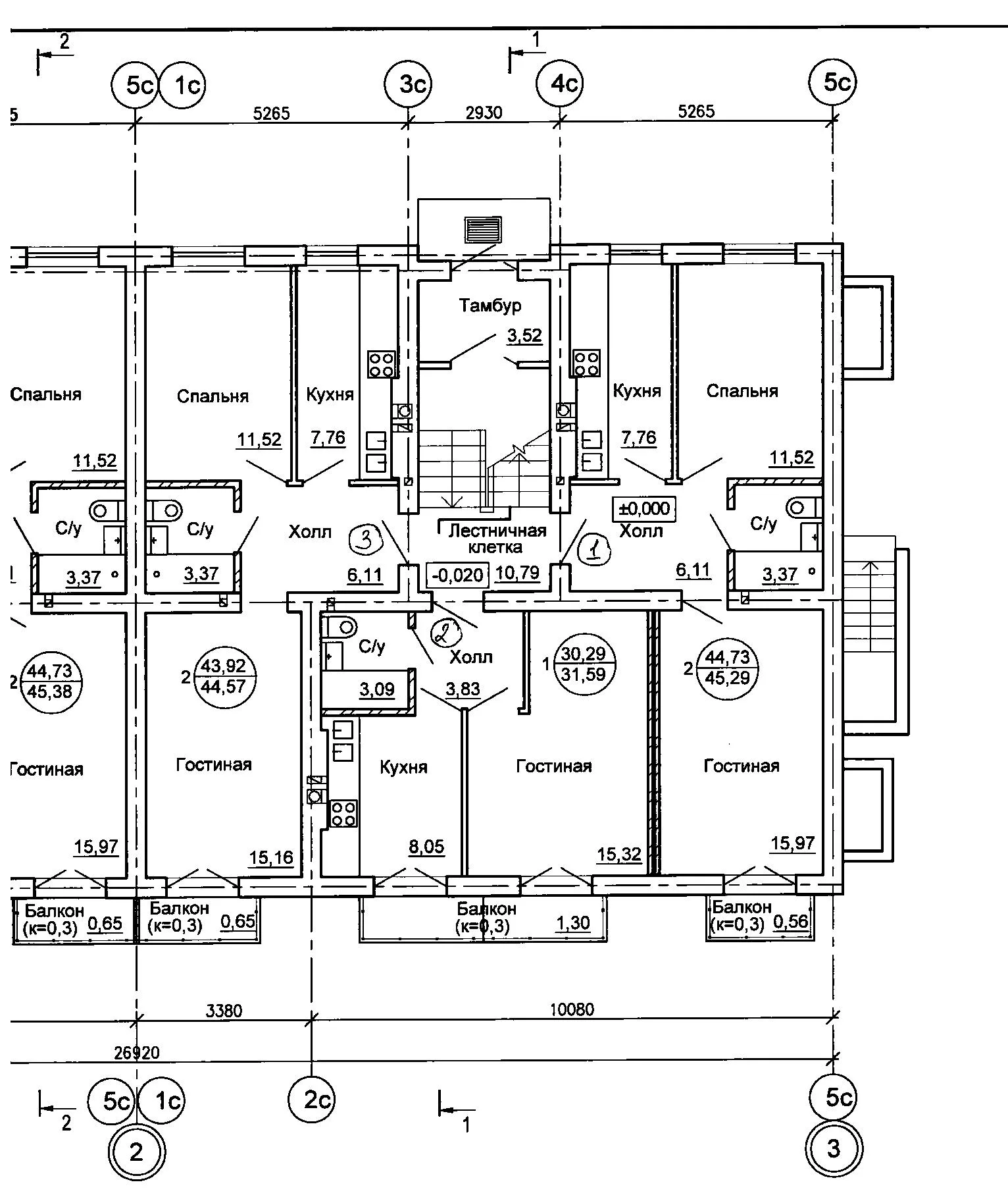
ЖК по адресу г. Калининград, улица Суворова, д. 148 Б

г. Калининград, улица Суворова, д. 148 Б
ЖК по адресу г. Калининград, улица Суворова, д. 148 Б
Застройщик БетонСтройМонтаж
Проектная декларация №39-000474 от 20.07.2020 и еще 1
Ввод в эксплуатацию 2020
Класс Типовой

Все проектные декларации ЖК по адресу г. Калининград, улица Суворова, д. 148 Б

№39-000474 от 20.07.2020
№39-000473 от 20.07.2020
Этажность4
Статус помещенийКвартиры
Тип домаКирпич
Потолки
Отделка
ПарковкаНет данных

0 комментариев
Новые
Старые Популярные
Межтекстовые Отзывы
Посмотреть все комментарии
Всё о стройке

Независимая площадка девелопмента
России и стран СНГ

Купить квартиру — каталог