На побережье британского графства Саффолк стоит необычное здание.
Самые эргономичные планировки евродвушек в новостройках бизнес-класса Москвы. ТОП-10
Обзор продуманных форматов квартир, которые меняют представление о комфорте.

Московский рынок новостроек бизнес-класса окончательно вышел из эры «дворцовых» планировок с гигантскими холлами и неиспользуемыми углами. На смену пафосу пришел прагматизм. Евродвушка — однокомнатная квартира с кухней-гостиной и изолированной спальней — стала золотым стандартом для покупателей, ценящих комфорт и инвестиционную привлекательность. Но квартира квартире рознь. Редакция Всеостройке.рф составила рейтинг проектов, где каждый квадратный метр действительно продуман до мелочей.
Критерии отбора: как мы считали эргономику
При составлении рейтинга мы оценивали планировочные решения с позиций «навигации по квартире» и полезности площадей. Оценка включала несколько ключевых параметров:
- Соотношение площади прихожей и коридоров к жилой. Идеал — минимум «мертвых» зон, «съедающих» полезное пространство.
- Функциональность кухни-гостиной. Оценивалась возможность расстановки большой кухни и одновременного размещения дивана и обеденной группы.
- Приватность спальни. Удаленность от входа, возможность вписать двуспальную кровать, наличие места под шкаф без ущерба для пространства.
- Наличие места под стиральную машину в ванной, система хранения у входа (возможность встроить шкаф, например).
- Наличие продуманных зон для организации кладовой или постирочной — для комфорта быта.
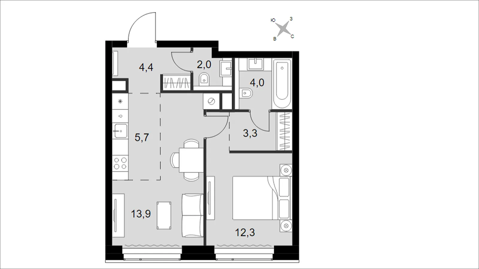
1. ЖК «Страна.Озерная», район Очаково-Матвеевское («Страна Девелопмент»)
Первое место нашего рейтинга занимает двухкомнатная квартира евроформата площадью 53,3 квадратных метра в жилом комплексе «Страна.Озерная», расположенном в пешей доступности от одноименной станции метро. Ее особенность — большая терраса, которая становится дополнительным пространством в квартире.

В квартире выделена мастер-зона с гардеробной и собственной ванной. Второй санузел, расположенный у входа, предназначен для гостей и повседневного пользования.
Просторная кухня-гостиная площадью 17,5 кв. мера позволяет вместить и удобную кухню, и мягкий диван для отдыха и общения, и даже рабочее место. А большие окна стирают грань между интерьером и внешней средой: благодаря большой зоне остекления терраса воспринимается как логичное продолжение кухни-гостиной. В теплую погоду это позволяет объединить внутреннее пространство с открытым, мгновенно увеличивая полезную площадь для приема гостей или летних обедов.
- Стоимость квартиры, по информации на сайте застройщика, — 27 887 500 ₽.
2. ЖК Amber City, Хорошёвский район (ГК ФСК)
На втором месте — двухкомнатная квартира с планировкой «евро» в ЖК Amber City, который ГК ФСК возводит на Беговой.

Эта квартира площадью 45,6 кв. метров демонстрирует, как должен выглядеть современный стандарт комфортного городского жилья: здесь каждый метр работает с максимальной отдачей, а функциональность не вступает в конфликт с ощущением простора. Главная особенность планировки — наличие полноценной мастер-зоны. Спальня здесь — это словно приватный номер в отеле с собственным санузлом и отдельной гардеробной. Это решение кардинально меняет сценарий жизни: личное пространство полностью отделено от гостевой части, и утром не нужно пересекать всю квартиру, чтобы собраться на работу. Размер спальни при этом позволяет установить действительно большую кровать с двумя проходами.
Пространство кухни-гостиной получилось достаточно широким, что позволяет организовать большую мягкую зону. Наличие второго, гостевого санузла при входе — это уже не роскошь, а признак продуманной эргономики. Дополнительным бонусом становятся отдельные ниши под шкафы или, например, под постирочную зону.
- Стоимость квартиры, по информации на сайте застройщика, — 25 925 606 ₽.
3. ЖК City Bay, район Покровское-Стрешнево (MR Group)
Еще один образец продуманного евроформата мы обнаружили в City Bay — жилом квартале бизнес-класса на берегу Москвы-реки с собственной набережной.

Центральным элементом в этой планировке становится просторная кухня-гостиная площадью почти 30 квадратных метров. Такой метраж позволяет по-настоящему реализовать полноценное зонирование: здесь найдется место и для кухонного гарнитура с островом, и для просторной обеденной группы, и для большой мягкой зоны с диванами, не создавая при этом ощущения тесноты или захламленности. Панорамное остекление визуально расширяет границы квартиры, «впуская» в интерьер городской пейзаж. При этом здесь предусмотрены и ниши для организации мест для хранения в холле, и просторный совмещенный санузел площадью 6 кв. метров.
Особого внимания заслуживает организация приватной зоны. Спальня здесь вынесена в отдельный тихий блок и имеет вход не из шумной гостиной, а из коридора. Это решение создает четкое разделение на публичную и личную территории. Вечером можно принимать гостей в огромной гостиной, и их присутствие никак не будет беспокоить тех, кто уже уединился в спальне.
- Стоимость квартиры, по информации на сайте застройщика, — 24 216 811,38 ₽
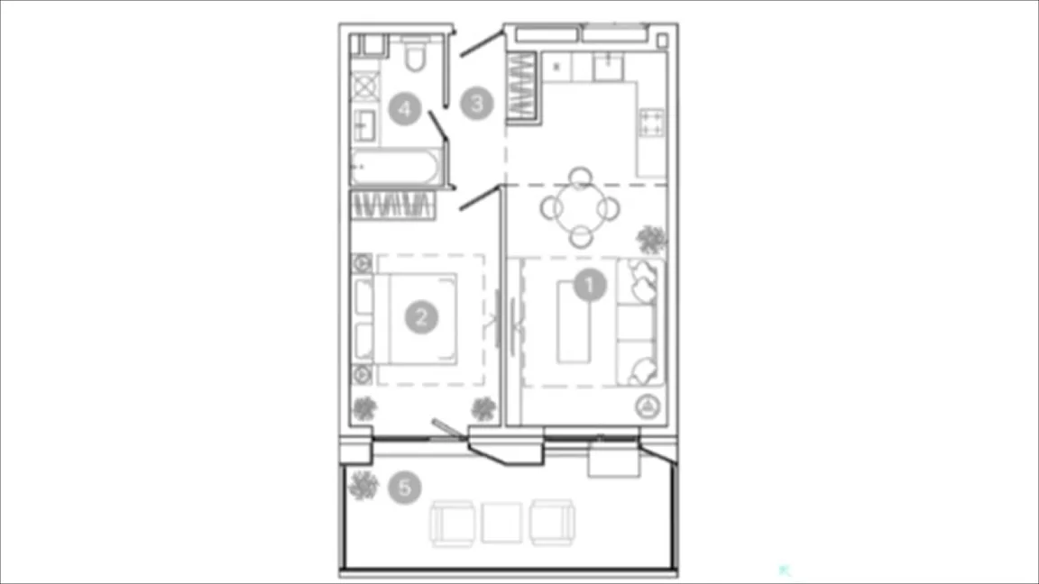
4. ЖК «MYPRIORITY Басманный», Басманный район («Гранель»)
Распашная планировка позволяет четко разграничить зоны благодаря тому, что комнаты расположены по разные стороны от входа и не имеют общих стен — как в этой квартире площадью 61,7 кв. метра в ЖК «MYPRIORITY Басманный».

С одной стороны от прихожей расположена комната для отдыха — спальня. Ее удаленность от входа и кухни обеспечивает естественную звукоизоляцию: шум от приготовления еды или работы телевизора в гостиной не проникает в зону сна. С другой стороны от входа находится объединенное пространство кухни-гостиной общей площадью 30 кв. метров, которое становится центром дневной активности.
Прихожая выполняет роль распределительного узла, но не превращается в длинный коридор. Из нее есть только три выхода — в спальню, в общую зону и ванну, что исключает потерю площади на транзитные галереи. Вся остальная площадь распределена между двумя основными помещениями, каждое из которых получает достаточно метража для полноценного использования. Интересное решение, когда эргономика строится не на сложных архитектурных приемах, а на логике разделения потоков.
- Стоимость квартиры, по информации на сайте застройщика, — от 34 740 391 ₽.
5. ЖК «Яркий квартал Injoy», Войковский район («Талан»)
Эта квартира площадью 60,7 квадратных метра в ЖК «Яркий квартал Injoy» тоже представляет собой продуманный евроформат.

Кухня-гостиная имеет удачную форму, которая позволяет разместить полноценный кухонный гарнитур с большим рабочим треугольником. При этом остается место и для обеденного стола, и для мягкой зоны, не перекрывая проходы. А обилие окон в этой квартире делает пространство визуально шире. Спальня организована как мастер-зона с собственной гардеробной. Но главная особенность — гардеробная имеет окна. Так что это светлое помещение можно использовать и как кабинет.
В итоге на 60 метрах удалось разместить три полноценные зоны: общую для всех, приватную спальню и светлое помещение-трансформер, которое одновременно работает и как гардеробная, и как кабинет.
- Стоимость квартиры, по информации на сайте застройщика, — 32 168 200 ₽
6. ЖК «Uno Соколиная Гора», район Соколиная Гора (ГК «Основа»)
Еще один пример евроформата, где эффективность использования пространства достигнута за счет четкого разделения функций, — квартира площадью 50 кв. м ЖК «Uno Соколиная Гора».

Основное преимущество планировки — пропорции помещений. Кухня-гостиная площадью 22,4 кв. метра является действительно универсальным пространством. Этого метража достаточно, чтобы одновременно разместить полноценную кухонную зону, обеденный стол на 4–6 персон и мягкую группу, сохранив при этом свободные проходы. А спальня площадью 14 кв. метров решает главную задачу любой компактной квартиры — возможность установки двуспальной кровати.
Терраса площадью 4,6 кв. метра примыкает сразу и к спальне, и к кухне-гостиной — и в данном случае выполняет утилитарную функцию. Она увеличивает световой поток в основные помещения и в теплый сезон может использоваться как дополнительная зона для отдыха или приема пищи, разгружая основное пространство квартиры.
- Стоимость квартиры, по информации на сайте застройщика, — 22 000 000 ₽.
7. ЖК «Среда на Лобачевского», район Очаково-Матвеевское («Среда», входит в ГК ПИК)
В числе особенностей этого планировочного решения, обнаруженного нами в жилом комплексе «Среда на Лобачевского», — мастер-зона, французский балкон и сквозная ванная комната.

Главное достоинство планировки этой квартиры площадью 39,2 кв. метра тоже кроется в организации приватной зоны: здесь реализована полноценная мастер-спальня, объединяющая спальное место, гардеробную и санузел в единый кластер. Гардеробная зона выполняет роль буферной зоны, которая изолирует комнату отдыха от возможного шума воды и создает плавный переход между функциями.
Отдельного внимания заслуживает сквозной санузел. При кажущейся сложности такая конфигурация обеспечивает удобную логистику: доступ к ванной комнате возможен как из мастер-спальни, так и из коридора. Это создает эффект двух санузлов без фактического удвоения метража. Ну а французский балкон, который также предусмотрен в этой планировке, будет «работать» как визуальный буфер между интерьером и улицей.
- Стоимость квартиры, по информации на сайте застройщика, — 27 342 000 ₽.
8. ЖК «Дом А», Даниловский район (Брусника)
В числе особенностей этой квартиры площадью 52,3 кв. метра, находящейся в жилом комплексе «Дом А», — терраса, расположенная на крыше.

Терраса на крыше добавляет полезные квадратные метры: в теплое время года это полноценная комната под открытым небом, а зимой — просто вид и свет.
Сама планировка грамотно использует главный ресурс — компактность без ущерба для комфорта. Спальня организована как мастер-блок с отдельной ванной комнатой и гардеробной. Это практичное решение: вещи хранятся в своем помещении и не загромождают комнату. Гардеробная к тому же работает как дополнительная шумоизоляция между входом и кроватью. А кухня объединена с гостиной, что позволяет готовить, общаться и отдыхать в одном пространстве без потери площади на стены и проходы.
- Стоимость квартиры, по информации на сайте застройщика, — 35 930 000 ₽.
9. ЖК «Акценты», район Восточное Дегунино (Plus Development)
Квартира площадью 41,4 кв. метра в ЖК «Акценты» представляет собой компактный, но продуманный вариант евроформата.

Главное достоинство — четкое разделение на полноценную кухню-гостиную (15,5 кв. метра) и отдельную спальню (14,4 кв. метра). При такой площади общая зона позволяет комфортно готовить, принимать гостей и отдыхать всей семьей, не создавая тесноты. Балкон, выходящий именно из кухни-гостиной, расширяет полезное пространство и служит дополнительной функциональной зоной. А наличие встроенных ниш под шкафы и в прихожей, и в спальне избавляет от необходимости загромождать проходы и жилое пространство мебелью, решая вопросы хранения заранее.
- Стоимость квартиры, по информации на сайте застройщика, — 19 405 752 2 ₽.
10. ЖК Balance, Рязанский район («Главстрой»)
Площадь этой евродвушки в ЖК Balance еще скромнее — 33,2 квадратных метра. Это еще один пример продуманного компактного жилья, где полезно использован буквально каждый угол.

Сразу при входе расположена гардеробная зона: верхняя одежда, обувь и сезонные вещи хранятся у двери и не разносятся по квартире. Рядом — ванная комната.
Изоляция спальни от гостиной — это эргономика отдыха. Такая планировка позволяет разделить сценарии жизни: вы можете смотреть телевизор или принимать гостей в одной комнате, пока кто-то спит в другой. Французский балкон в кухне-гостиной — это тоже эргономика пространства. Вместо полноценного балкона, который часто захламляется, здесь использован европейский прием: остекление в пол дает максимум естественного света, визуально расширяя комнату, при этом на такой балкон можно выйти подышать воздухом или поставить цветы, не теряя драгоценные квадратные метры внутри квартиры.
- Стоимость квартиры, по информации на сайте застройщика, — 15 569 920 ₽.
Ранее портал Всеостройке.рф назвал застройщиков-лидеров надежности по итогам 2025 года.
После московских проектов девелопер выгрузил на маркетплейс и квартиры в жилых комплексах Екатеринбурга и Тюмени — с эксклюзивной скидкой 1,5% для пользователей платформы.
Подробнее читайте в нашем материале.
После визита в Москву султан Ибрагим получил лимузин Aurus Senat, а затем начал присматриваться к элитной недвижимости возле делового центра.
Почему попытка остановить счетчик воды или электричества сегодня легко вычисляется и чем опасны неодимовые магниты.
Квартира на Котельнической, дача в Переделкино и культурная империя: как жила 102-летняя вдова Андрея Вознесенского и что останется после нее.
Компания не будет застраивать два участка на пересечении Ленина и Университетской, а также участок в 27-м микрорайоне. Причиной отказа стала ситуация на рынке.
Продолжается развитие истории, о которой мы писали ранее: проблемы со сроками в сургутском ЖК «За ручьем» оказались лишь частью более системного кризиса девелопера.
Лучшие форматы коммерческой недвижимости для инвестиций в 2026 году: на каких объектах можно заработать, какие активы просядут и почему управление сегодня важнее квадратных метров.
Определение ВС РФ от 08.05.2026 № 303-ЭС26-103 по делу № А51-8986/2023.





Очень понравился вариант с террасой! Достаточно редкий вариант! Обратила бы на него внимание
Да, согласны с Вами 😊